Exklusives Wohnen in idyllischer Cottagelage (inkl. Garage)

Exklusives Wohnen in idyllischer Cottagelage (inkl. Garage)

1180 Wien

Wohnung zum Kauf in 1180 Wien

Für eine noch größere Auswahl an Immobilien besuchen Sie www.akkadia.at.

In traumhafter Cottagelage entstand 2016 dieses moderne Neubauprojekt, das Design, Komfort und Natur harmonisch vereint. Das Ensemble aus zwei Häusern mit insgesamt 22 Wohneinheiten steht für zeitgemäßes Wohnen auf höchstem Niveau.

Die Architektur überzeugt durch klare Linien, hochwertige Materialien und eine durchdachte Raumaufteilung. Jede Einheit verfügt über zentral begehbare Räume, großzügige Gärten, Balkone oder Terrassen mit Grünblick, elektrische Außenbeschattung sowie eine effiziente Gaszentralheizung.
Tiefgaragenplätze, Kellerabteile sowie Abstellflächen für Fahrräder und Kinderwägen sind selbstverständlich vorhanden.

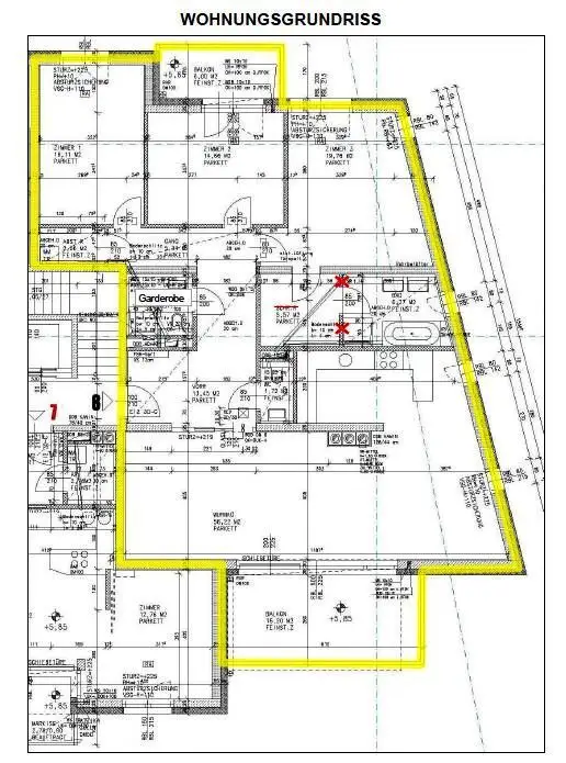
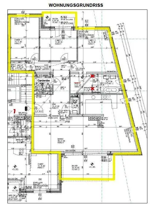
Die gegenständliche Wohnung befindet sich im zweiten Liftstock und bietet auf ca. 148 m² Wohnfläche ein außergewöhnliches Wohngefühl.
Über den großzügigen Vorraum gelangen Sie in die stilvolle Wohnküche mit vorgelagertem Balkon und Blick in den Garten mit Pool. Ein Masterbedroom, zwei weitere Zimmer, ein modernes Badezimmer mit Walk-In Dusche und Fenster, eine separate Toilette sowie zwei praktische Abstellräume runden das Raumangebot ab.

Ein Garagenplatz und ein großes Kellerabteil sind im Kaufpreis inkludiert.

„Auf Grund der EU-Richtlinien zum Fernabsatz- und Auswärtsgeschäfte-Gesetz bitten wir um Ihr Verständnis, dass wir Ihnen seit 13. Juni 2014 die Objekt-Unterlagen erst nach Ihrer Bestätigung, dass Sie unser Tätigwerden wünschen und über Ihre Rücktrittsrechte aufgeklärt wurden, zusenden können. Bevor Sie die Unterlagen zugesendet bekommen, erhalten Sie eine Mail in der Sie diese beiden Punkte bestätigen müssen. Vielen Dank für Ihr Vertrauen!“

Lage und Verkehrs­anbindung

Das „Währinger Cottageviertel“ zählt seit jeher zu den exklusivsten und vornehmsten Wohngegenden in Wien. Inmitten von herrschaftlichen Altbauhäusern und traumhaften Neubauten befindet sich diese Liegenschaft zwischen der Peter-Jordan-Straße und der Felix-Dahn-Straße. Der Standort ist die perfekte Symbiose von urbanem Wohnen und grünem Erholungsraum. Der Türkenschanzpark und der Hugo-Wolf-Park sind rasch erreichbar und laden zum Relaxen und zu einer aktiven Freizeitgestaltung ein. Die gepflegte Nachbarschaft bietet eine ausgezeichnete Nahversorgung mit Einkaufsmöglichkeiten auf der Gersthofer Straße, sowie beste Infrastruktur mit Schulen, Ärzten und Apotheken. Der Standort ist durch seine Nähe zu den Buslinien 10A und 40A und der Straßenbahnlinie 41 optimal an das Wiener Verkehrsnetz angebunden.

Grundriss

Michael Schlaffer

Michael Schlaffer

Berater | Consultant

Seite teilen

Preisdetails

Kaufpreis:
1.100.000,00 €
Betriebskosten netto:
225,19 €
Reparaturrücklage netto:
113,60 €
Monatliche Kosten USt.:
24,49 €
Garage Kosten brutto:
9,84 €
Vermittlungsprovision:
Ja
Provision:
3% des Kaufpreises zzgl. 20% USt.

Fakten

Objektnummer:
60543
Objekttyp:
Wohnung
Balkon:
2
Balkonfläche:
22,2 m²
Keller Fläche:
4,2 m²
Wohnfläche:
147,52 m²
Zimmer:
4
Badezimmer:
1
Toilette:
1
Stockwerk:
2. Etage
Baujahr:
2016
Neubau:
Ja
Zustand:
Gepflegt
Verfügbarkeit:
Verfügbar

Ausstattungen

Barrierefrei
Elevator
Wohnküche / offene Küche
Bad:
Badewanne, Dusche
Garage
Parkplatz
Heizung:
Zentralheizung, Fußbodenheizung, Gas

Energieeffizienz

Energieausweisart:
Energiebedarf­sausweis
HWB:
29,17 kWh/(m²*a)
HWB Klasse:
B

Ähnliche Immobilien

Erstbezug I Neubauprojekt I Balkon
Erstbezug I Neubauprojekt I Balkon
Erstbezug I Neubauprojekt I Balkon
Erstbezug I Neubauprojekt I Balkon
Erstbezug I Neubauprojekt I Balkon
Erstbezug I Neubauprojekt I Balkon
Erstbezug I Neubauprojekt I Balkon
Erstbezug I Neubauprojekt I Balkon
Erstbezug I Neubauprojekt I Balkon

2

62.1m²

8.4m²

€ 735.000

Wohnung zum Kauf in 1180 Wien

Erstbezug I Neubauprojekt I Balkon

Traumhafte Balkonwohnung I Erstbezug
Traumhafte Balkonwohnung I Erstbezug
Traumhafte Balkonwohnung I Erstbezug
Traumhafte Balkonwohnung I Erstbezug
Traumhafte Balkonwohnung I Erstbezug
Traumhafte Balkonwohnung I Erstbezug
Traumhafte Balkonwohnung I Erstbezug
Traumhafte Balkonwohnung I Erstbezug
Traumhafte Balkonwohnung I Erstbezug
Traumhafte Balkonwohnung I Erstbezug

2

63.4m²

9.6m²

€ 748.000

Wohnung zum Kauf in 1180 Wien

Traumhafte Balkonwohnung I Erstbezug

Erstbezug I Traumhafte Dachwohnung I Pötzleinsdorfer Schloßpark
Erstbezug I Traumhafte Dachwohnung I Pötzleinsdorfer Schloßpark
Erstbezug I Traumhafte Dachwohnung I Pötzleinsdorfer Schloßpark
Erstbezug I Traumhafte Dachwohnung I Pötzleinsdorfer Schloßpark
Erstbezug I Traumhafte Dachwohnung I Pötzleinsdorfer Schloßpark
Erstbezug I Traumhafte Dachwohnung I Pötzleinsdorfer Schloßpark
Erstbezug I Traumhafte Dachwohnung I Pötzleinsdorfer Schloßpark
Erstbezug I Traumhafte Dachwohnung I Pötzleinsdorfer Schloßpark
Erstbezug I Traumhafte Dachwohnung I Pötzleinsdorfer Schloßpark
Erstbezug I Traumhafte Dachwohnung I Pötzleinsdorfer Schloßpark
Erstbezug I Traumhafte Dachwohnung I Pötzleinsdorfer Schloßpark
Erstbezug I Traumhafte Dachwohnung I Pötzleinsdorfer Schloßpark
Erstbezug I Traumhafte Dachwohnung I Pötzleinsdorfer Schloßpark
Erstbezug I Traumhafte Dachwohnung I Pötzleinsdorfer Schloßpark

3

87.4m²

33.1m²

€ 801.000

Wohnung zum Kauf in 1180 Wien

Erstbezug I Traumhafte Dachwohnung I Pötzleinsdorfer Schloßpark

Herrliche Dachwohnung Nähe Gersthofer Straße
Herrliche Dachwohnung Nähe Gersthofer Straße
Herrliche Dachwohnung Nähe Gersthofer Straße
Herrliche Dachwohnung Nähe Gersthofer Straße
Herrliche Dachwohnung Nähe Gersthofer Straße
Herrliche Dachwohnung Nähe Gersthofer Straße
Herrliche Dachwohnung Nähe Gersthofer Straße
Herrliche Dachwohnung Nähe Gersthofer Straße
Herrliche Dachwohnung Nähe Gersthofer Straße
Herrliche Dachwohnung Nähe Gersthofer Straße
Herrliche Dachwohnung Nähe Gersthofer Straße
Herrliche Dachwohnung Nähe Gersthofer Straße

3

83.6m²

29.8m²

€ 729.000

Wohnung zum Kauf in 1180 Wien

Herrliche Dachwohnung Nähe Gersthofer Straße

Familientraum im Neubauprojekt
Familientraum im Neubauprojekt
Familientraum im Neubauprojekt
Familientraum im Neubauprojekt
Familientraum im Neubauprojekt
Familientraum im Neubauprojekt
Familientraum im Neubauprojekt
Familientraum im Neubauprojekt
Familientraum im Neubauprojekt
Familientraum im Neubauprojekt
Familientraum im Neubauprojekt
Familientraum im Neubauprojekt

3

100.5m²

13.2m²

€ 903.000

Wohnung zum Kauf in 1180 Wien

Familientraum im Neubauprojekt

Herrliche Gartenwohnung I Neubauprojekt
Herrliche Gartenwohnung I Neubauprojekt
Herrliche Gartenwohnung I Neubauprojekt
Herrliche Gartenwohnung I Neubauprojekt
Herrliche Gartenwohnung I Neubauprojekt
Herrliche Gartenwohnung I Neubauprojekt
Herrliche Gartenwohnung I Neubauprojekt
Herrliche Gartenwohnung I Neubauprojekt
Herrliche Gartenwohnung I Neubauprojekt
Herrliche Gartenwohnung I Neubauprojekt
Herrliche Gartenwohnung I Neubauprojekt
Herrliche Gartenwohnung I Neubauprojekt

3

88.8m²

198.5m²

€ 782.000

Wohnung zum Kauf in 1180 Wien

Herrliche Gartenwohnung I Neubauprojekt

Gartenwohnung Nähe Pötzleinsdorfer Schloßpark
Gartenwohnung Nähe Pötzleinsdorfer Schloßpark
Gartenwohnung Nähe Pötzleinsdorfer Schloßpark
Gartenwohnung Nähe Pötzleinsdorfer Schloßpark
Gartenwohnung Nähe Pötzleinsdorfer Schloßpark
Gartenwohnung Nähe Pötzleinsdorfer Schloßpark
Gartenwohnung Nähe Pötzleinsdorfer Schloßpark
Gartenwohnung Nähe Pötzleinsdorfer Schloßpark
Gartenwohnung Nähe Pötzleinsdorfer Schloßpark
Gartenwohnung Nähe Pötzleinsdorfer Schloßpark
Gartenwohnung Nähe Pötzleinsdorfer Schloßpark
Gartenwohnung Nähe Pötzleinsdorfer Schloßpark

3

85.1m²

157.8m²

€ 711.000

Wohnung zum Kauf in 1180 Wien

Gartenwohnung Nähe Pötzleinsdorfer Schloßpark

Neubauprojekt Nähe Pötzleinsdorfer Schloßpark
Neubauprojekt Nähe Pötzleinsdorfer Schloßpark
Neubauprojekt Nähe Pötzleinsdorfer Schloßpark
Neubauprojekt Nähe Pötzleinsdorfer Schloßpark
Neubauprojekt Nähe Pötzleinsdorfer Schloßpark
Neubauprojekt Nähe Pötzleinsdorfer Schloßpark
Neubauprojekt Nähe Pötzleinsdorfer Schloßpark
Neubauprojekt Nähe Pötzleinsdorfer Schloßpark
Neubauprojekt Nähe Pötzleinsdorfer Schloßpark
Neubauprojekt Nähe Pötzleinsdorfer Schloßpark
Neubauprojekt Nähe Pötzleinsdorfer Schloßpark
Neubauprojekt Nähe Pötzleinsdorfer Schloßpark

Verfügbare Einheiten: 5

ab € 711.000

Projekt / Wohnung zum Kauf in 1180 Wien

Neubauprojekt Nähe Pötzleinsdorfer Schloßpark