2-Zimmer Wohlfühloase mit großem Garten
2-Zimmer Wohlfühloase mit großem Garten
2-Zimmer Wohlfühloase mit großem Garten
2-Zimmer Wohlfühloase mit großem Garten
2-Zimmer Wohlfühloase mit großem Garten

Apreciada oasis de 2 habitaciones con un gran jardín.

1210 Wien

Apartamento en venta en 1210 Wien

El proyecto incluye la construcción de un moderno complejo residencial con un total de 12 unidades, que destacan por su arquitectura clara, alta calidad de construcción y planos bien pensados. Se ha prestado especial atención a las amplias superficies de ventanas, que proporcionan espacios luminosos y una agradable atmósfera de vivienda. Cada apartamento cuenta con espacios exteriores privados - ya sea un balcón, una terraza o un jardín privado - lo que brinda a los residentes la posibilidad de expandir su espacio vital al aire libre y disfrutar de la vida cotidiana con un plus de calidad de vida.

El complejo ofrece una mezcla ideal de comodidad urbana y un refugio tranquilo. Los apartamentos están diseñados para cubrir diferentes necesidades: unidades compactas para solteros y parejas, así como apartamentos más familiares con más espacio. Todos se caracterizan por un equipamiento de alta calidad, una distribución funcional de los espacios y una sensación moderna de vivienda.

Para los inversores, este proyecto representa una oportunidad atractiva para invertir en una inversión inmobiliaria segura para el futuro. El mercado muestra que en esta ubicación se pueden obtener alquileres netos entre 13 y 15 euros por metro cuadrado de forma realista. Basándose en estos niveles de alquiler, se pueden esperar rendimientos brutos en el rango del 3,5 al 4 por ciento, lo que convierte al proyecto en una inversión sólida y resistente al valor. La demanda estable de vivienda y la combinación de espacios exteriores, arquitectura contemporánea y el tamaño óptimo de las unidades crean las mejores condiciones para una alta alquilabilidad a largo plazo.

El complejo residencial no solo es un hogar moderno para los futuros residentes, sino también una inversión sostenible con rendimientos atractivos. La combinación de calidad, sensación de vida y estabilidad económica convierte este proyecto en una inversión que apela tanto al corazón como a la razón.

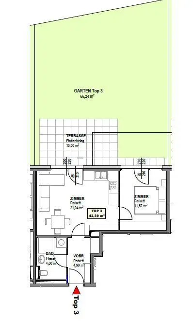
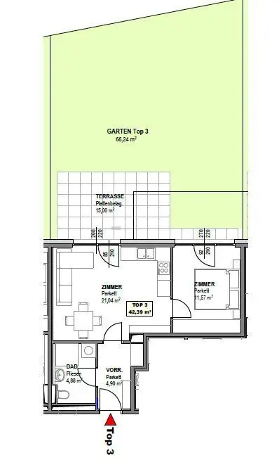
Con aproximadamente 42 metros cuadrados de superficie habitable, este apartamento ofrece un hogar compacto y bien estructurado. Dos habitaciones se pueden configurar de manera flexible, ya sea como un acogedor salón con dormitorio o como un apartamento con un área de trabajo. Es especialmente destacable el amplio jardín privado de más de 66 metros cuadrados, que junto con una terraza de 15 metros cuadrados crea una oferta excepcional al aire libre. Así se forma un hogar que es fácil de mantener en el interior y práctico, mientras que afuera hay mucho espacio para relajarse, plantar o disfrutar de veladas sociales. Oasis de bienestar de 2 habitaciones con un gran jardín.

Localización y conexiones de transporte

La urbanización se encuentra en un entorno tranquilo y familiar con muy buena infraestructura. Escuelas, jardines de infancia y centros de atención están en las inmediaciones, al igual que parques infantiles y áreas verdes para niños. Las opciones de compra, farmacias y tiendas de primera necesidad son de fácil acceso y facilitan la vida diaria. La conexión con el transporte público es excelente: las líneas de tranvía y autobús están a pocos minutos a pie y ofrecen conexiones directas al centro de la ciudad. También hay nodos de transporte más grandes a poca distancia, lo que hace que los trayectos laborales y las excursiones familiares sean muy sencillas. La ubicación combina la comodidad urbana con un entorno residencial tranquilo y adecuado para las familias, ideal tanto para padres como para niños.

Plano

Josef Ahmed

Josef Ahmed

Berater | Consultant

Compartir página

Detalles del precio

Precio de compra:
255.000,00 €
Comisión de intermediación:
Comisión:
3% del precio de compra más 20% de IVA.

Hechos

Número de objeto:
60479
Tipo de objeto:
Apartamento
Terraza:
1
Área de la terraza:
15 m²
Área habitable:
41,66 m²
Área del jardín:
66,24 m²
Baños:
1
Baño:
1
Piso:
EG
Año de construcción:
2025
Edificio nuevo:
Condición:
Primera ocupación
Disponibilidad:
Disponible

Características

Ascensor
Cuarto de baño:
Ducha
Calefacción:
Calefacción por suelo radiante

Eficiencia energética

Tipo de certificado energético:
Certificado de requisitos energéticos
Válido hasta:
17.09.2029
Demanda de energía de calefacción:
36,94 kWh/(m²*a)
Clase de demanda de energía de calefacción:
B
Factor de eficiencia energética total:
0,73
Clase de factor de eficiencia energética total:
A

Inmuebles similares

Ruhige 2-Zimmer-Wohnung mit Gartenblick und Garagenplatz
Ruhige 2-Zimmer-Wohnung mit Gartenblick und Garagenplatz
Ruhige 2-Zimmer-Wohnung mit Gartenblick und Garagenplatz
Ruhige 2-Zimmer-Wohnung mit Gartenblick und Garagenplatz
Ruhige 2-Zimmer-Wohnung mit Gartenblick und Garagenplatz
Ruhige 2-Zimmer-Wohnung mit Gartenblick und Garagenplatz
Ruhige 2-Zimmer-Wohnung mit Gartenblick und Garagenplatz
Ruhige 2-Zimmer-Wohnung mit Gartenblick und Garagenplatz
Ruhige 2-Zimmer-Wohnung mit Gartenblick und Garagenplatz
Ruhige 2-Zimmer-Wohnung mit Gartenblick und Garagenplatz
Ruhige 2-Zimmer-Wohnung mit Gartenblick und Garagenplatz
Ruhige 2-Zimmer-Wohnung mit Gartenblick und Garagenplatz
Ruhige 2-Zimmer-Wohnung mit Gartenblick und Garagenplatz
Ruhige 2-Zimmer-Wohnung mit Gartenblick und Garagenplatz
Ruhige 2-Zimmer-Wohnung mit Gartenblick und Garagenplatz
Ruhige 2-Zimmer-Wohnung mit Gartenblick und Garagenplatz
Ruhige 2-Zimmer-Wohnung mit Gartenblick und Garagenplatz
Ruhige 2-Zimmer-Wohnung mit Gartenblick und Garagenplatz
Ruhige 2-Zimmer-Wohnung mit Gartenblick und Garagenplatz
Ruhige 2-Zimmer-Wohnung mit Gartenblick und Garagenplatz
Ruhige 2-Zimmer-Wohnung mit Gartenblick und Garagenplatz
Ruhige 2-Zimmer-Wohnung mit Gartenblick und Garagenplatz
Ruhige 2-Zimmer-Wohnung mit Gartenblick und Garagenplatz
Ruhige 2-Zimmer-Wohnung mit Gartenblick und Garagenplatz
Ruhige 2-Zimmer-Wohnung mit Gartenblick und Garagenplatz
Ruhige 2-Zimmer-Wohnung mit Gartenblick und Garagenplatz
Ruhige 2-Zimmer-Wohnung mit Gartenblick und Garagenplatz

55m²

€ 250.000

Apartamento en venta en 1210 Wien

Apartamento tranquilo de 2 habitaciones con vista al jardín y lugar de garaje.

Helle Wohnung mit Balkon und Lebensqualität
Helle Wohnung mit Balkon und Lebensqualität
Helle Wohnung mit Balkon und Lebensqualität
Helle Wohnung mit Balkon und Lebensqualität

57.4m²

10.3m²

€ 280.000

Apartamento en venta en 1210 Wien

Apartamento luminoso con balcón y calidad de vida

Praktisch, modern, hell – ideal für Paare
Praktisch, modern, hell – ideal für Paare
Praktisch, modern, hell – ideal für Paare
Praktisch, modern, hell – ideal für Paare
Praktisch, modern, hell – ideal für Paare
Praktisch, modern, hell – ideal für Paare

57.5m²

10.3m²

€ 280.000

Apartamento en venta en 1210 Wien

Práctico, moderno, luminoso - ideal para parejas

Wohnqualität trifft Investment – Ihr Platz zum Leben und Anlegen
Wohnqualität trifft Investment – Ihr Platz zum Leben und Anlegen
Wohnqualität trifft Investment – Ihr Platz zum Leben und Anlegen
Wohnqualität trifft Investment – Ihr Platz zum Leben und Anlegen
Wohnqualität trifft Investment – Ihr Platz zum Leben und Anlegen
Wohnqualität trifft Investment – Ihr Platz zum Leben und Anlegen
Wohnqualität trifft Investment – Ihr Platz zum Leben und Anlegen
Wohnqualität trifft Investment – Ihr Platz zum Leben und Anlegen
Wohnqualität trifft Investment – Ihr Platz zum Leben und Anlegen
Wohnqualität trifft Investment – Ihr Platz zum Leben und Anlegen
Wohnqualität trifft Investment – Ihr Platz zum Leben und Anlegen

Unidades disponibles: 11

desde € 255.000

Proyecto / Apartamento en venta en 1210 Wien

La calidad de vida se encuentra con la inversión: su lugar para vivir y invertir.