Charmante 2-Zimmer Wohnung mit Balkon
Charmante 2-Zimmer Wohnung mit Balkon
Charmante 2-Zimmer Wohnung mit Balkon

Encantable apartamento de 2 habitaciones con balcón

1210 Wien

Apartamento en venta en 1210 Wien

El proyecto incluye la construcción de un moderno conjunto residencial con un total de 12 unidades, que destacan por su clara arquitectura, construcción de alta calidad y planos bien pensados. Se ha prestado especial atención a las amplias superficies de ventana, que garantizan espacios luminosos y una agradable atmósfera de vivienda. Cada apartamento cuenta con áreas exteriores privadas, ya sea un balcón, una terraza o un jardín propio, lo que permite a los residentes extender su espacio habitable al aire libre y disfrutar de la vida cotidiana con un plus de calidad de vida.

El conjunto ofrece una mezcla ideal de comodidad urbana y un tranquilo refugio. Los apartamentos están diseñados para cubrir diferentes necesidades: unidades compactas para solteros y parejas, así como apartamentos más amigables para familias con más espacio. Todos se caracterizan por un equipamiento de alta calidad, una distribución funcional de los espacios y un moderno sentido de vivienda.

Para los inversores, este proyecto representa una oportunidad atractiva para invertir en una inversión inmobiliaria segura para el futuro. El mercado muestra que en esta ubicación se pueden lograr rentas netas entre 13 y 15 euros por metro cuadrado de manera realista. Basándose en estos niveles de alquiler, se pueden esperar rendimientos brutos en el área del 3,5 al 4 por ciento, lo que convierte al proyecto en una inversión sólida y de valor duradero. La demanda estable de vivienda y la combinación de áreas exteriores, arquitectura contemporánea y tamaño óptimo de las unidades crean las mejores condiciones para una alta rentabilidad a largo plazo.

Así, el conjunto residencial no solo es un moderno hogar para los futuros residentes, sino también una inversión sostenible con retornos atractivos. La conexión entre calidad, estilo de vida y estabilidad económica hace de este proyecto una inversión que apela tanto al corazón como a la razón.

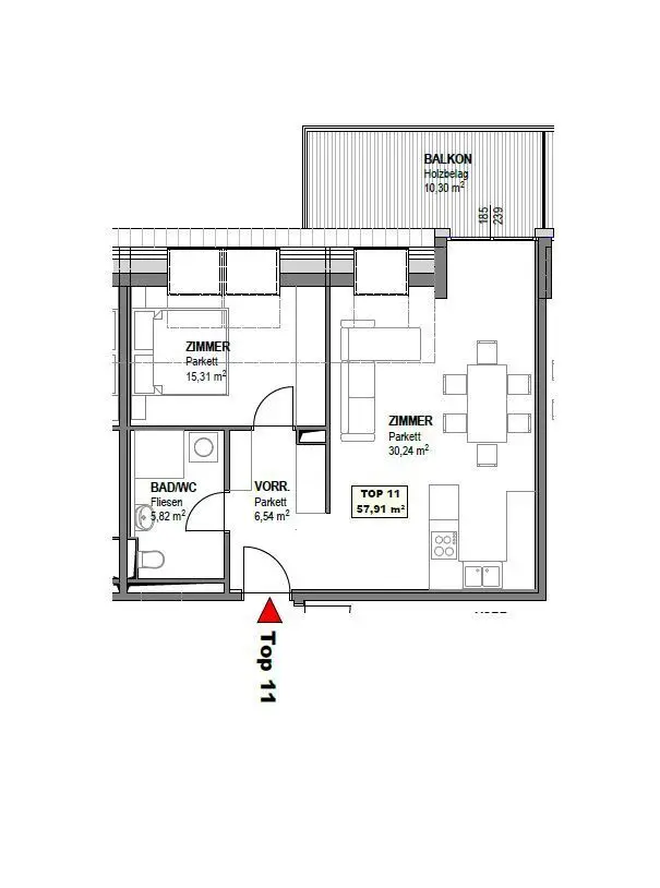
Con una superficie habitable de aproximadamente 57 metros cuadrados, este ático ofrece un encantador hogar para parejas o personas solteras. La sala de estar se abre a un balcón de más de diez metros cuadrados, que junto con la pequeña terraza representa una agradable extensión al aire libre. Gracias a su ubicación en el ático, se disfruta aquí no solo de tranquilidad, sino también de una hermosa vista. El apartamento combina una vivienda compacta con una atmósfera acogedora y es ideal como un lugar personal de retiro.

Localización y conexiones de transporte

La urbanización se encuentra en un entorno tranquilo y familiar con muy buena infraestructura. Escuelas, jardines de infancia y centros de atención están en las inmediaciones, al igual que parques infantiles y áreas verdes para niños. Las opciones de compra, farmacias y tiendas de primera necesidad son de fácil acceso y facilitan la vida diaria. La conexión con el transporte público es excelente: las líneas de tranvía y autobús están a pocos minutos a pie y ofrecen conexiones directas al centro de la ciudad. También hay nodos de transporte más grandes a poca distancia, lo que hace que los trayectos laborales y las excursiones familiares sean muy sencillas. La ubicación combina la comodidad urbana con un entorno residencial tranquilo y adecuado para las familias, ideal tanto para padres como para niños.

Plano

Josef Ahmed

Josef Ahmed

Berater | Consultant

Compartir página

Detalles del precio

Precio de compra:
290.000,00 €
Comisión de intermediación:
Comisión:
3% del precio de compra más 20% de IVA.

Hechos

Número de objeto:
60487
Tipo de objeto:
Apartamento
Balcón:
1
Área del balcón:
10,3 m²
Área habitable:
57,19 m²
Piso:
EG
Año de construcción:
2025
Edificio nuevo:
Condición:
Primera ocupación
Disponibilidad:
Disponible

Características

Ascensor
Cuarto de baño:
Ducha
Calefacción:
Calefacción por suelo radiante

Eficiencia energética

Tipo de certificado energético:
Certificado de requisitos energéticos
Válido hasta:
17.09.2029
Demanda de energía de calefacción:
36,94 kWh/(m²*a)
Clase de demanda de energía de calefacción:
B
Factor de eficiencia energética total:
0,73
Clase de factor de eficiencia energética total:
A

Inmuebles similares

Ruhige 2-Zimmer-Wohnung mit Gartenblick und Garagenplatz
Ruhige 2-Zimmer-Wohnung mit Gartenblick und Garagenplatz
Ruhige 2-Zimmer-Wohnung mit Gartenblick und Garagenplatz
Ruhige 2-Zimmer-Wohnung mit Gartenblick und Garagenplatz
Ruhige 2-Zimmer-Wohnung mit Gartenblick und Garagenplatz
Ruhige 2-Zimmer-Wohnung mit Gartenblick und Garagenplatz
Ruhige 2-Zimmer-Wohnung mit Gartenblick und Garagenplatz
Ruhige 2-Zimmer-Wohnung mit Gartenblick und Garagenplatz
Ruhige 2-Zimmer-Wohnung mit Gartenblick und Garagenplatz
Ruhige 2-Zimmer-Wohnung mit Gartenblick und Garagenplatz
Ruhige 2-Zimmer-Wohnung mit Gartenblick und Garagenplatz
Ruhige 2-Zimmer-Wohnung mit Gartenblick und Garagenplatz
Ruhige 2-Zimmer-Wohnung mit Gartenblick und Garagenplatz
Ruhige 2-Zimmer-Wohnung mit Gartenblick und Garagenplatz
Ruhige 2-Zimmer-Wohnung mit Gartenblick und Garagenplatz
Ruhige 2-Zimmer-Wohnung mit Gartenblick und Garagenplatz
Ruhige 2-Zimmer-Wohnung mit Gartenblick und Garagenplatz
Ruhige 2-Zimmer-Wohnung mit Gartenblick und Garagenplatz
Ruhige 2-Zimmer-Wohnung mit Gartenblick und Garagenplatz
Ruhige 2-Zimmer-Wohnung mit Gartenblick und Garagenplatz
Ruhige 2-Zimmer-Wohnung mit Gartenblick und Garagenplatz
Ruhige 2-Zimmer-Wohnung mit Gartenblick und Garagenplatz
Ruhige 2-Zimmer-Wohnung mit Gartenblick und Garagenplatz
Ruhige 2-Zimmer-Wohnung mit Gartenblick und Garagenplatz
Ruhige 2-Zimmer-Wohnung mit Gartenblick und Garagenplatz
Ruhige 2-Zimmer-Wohnung mit Gartenblick und Garagenplatz
Ruhige 2-Zimmer-Wohnung mit Gartenblick und Garagenplatz

55m²

€ 250.000

Apartamento en venta en 1210 Wien

Apartamento tranquilo de 2 habitaciones con vista al jardín y lugar de garaje.

Grünes Refugium für Singles und Paare
Grünes Refugium für Singles und Paare
Grünes Refugium für Singles und Paare
Grünes Refugium für Singles und Paare
Grünes Refugium für Singles und Paare
Grünes Refugium für Singles und Paare

57.6m²

68.6m²

€ 315.000

Apartamento en venta en 1210 Wien

Refugio verde para solteros y parejas

Helle Wohnung mit Balkon und Lebensqualität
Helle Wohnung mit Balkon und Lebensqualität
Helle Wohnung mit Balkon und Lebensqualität
Helle Wohnung mit Balkon und Lebensqualität

57.4m²

10.3m²

€ 280.000

Apartamento en venta en 1210 Wien

Apartamento luminoso con balcón y calidad de vida

Hell, modern und offen – Wohnen im Dachgeschoss
Hell, modern und offen – Wohnen im Dachgeschoss
Hell, modern und offen – Wohnen im Dachgeschoss
Hell, modern und offen – Wohnen im Dachgeschoss

57.2m²

10.3m²

€ 290.000

Apartamento en venta en 1210 Wien

Claro, moderno y abierto - Vivir en la azotea

Praktisch, modern, hell – ideal für Paare
Praktisch, modern, hell – ideal für Paare
Praktisch, modern, hell – ideal für Paare
Praktisch, modern, hell – ideal für Paare
Praktisch, modern, hell – ideal für Paare
Praktisch, modern, hell – ideal für Paare

57.5m²

10.3m²

€ 280.000

Apartamento en venta en 1210 Wien

Práctico, moderno, luminoso - ideal para parejas

2-Zimmer Wohlfühloase mit großem Garten
2-Zimmer Wohlfühloase mit großem Garten
2-Zimmer Wohlfühloase mit großem Garten
2-Zimmer Wohlfühloase mit großem Garten
2-Zimmer Wohlfühloase mit großem Garten

41.7m²

81.3m²

€ 255.000

Apartamento en venta en 1210 Wien

Apreciada oasis de 2 habitaciones con un gran jardín.

Hell, modern und offen – Wohnen im Dachgeschoss
Hell, modern und offen – Wohnen im Dachgeschoss
Hell, modern und offen – Wohnen im Dachgeschoss
Hell, modern und offen – Wohnen im Dachgeschoss
Hell, modern und offen – Wohnen im Dachgeschoss
Hell, modern und offen – Wohnen im Dachgeschoss

57.2m²

10.3m²

€ 290.000

Apartamento en venta en 1210 Wien

Claro, moderno y abierto - Vivir en la azotea

Wohnqualität trifft Investment – Ihr Platz zum Leben und Anlegen
Wohnqualität trifft Investment – Ihr Platz zum Leben und Anlegen
Wohnqualität trifft Investment – Ihr Platz zum Leben und Anlegen
Wohnqualität trifft Investment – Ihr Platz zum Leben und Anlegen
Wohnqualität trifft Investment – Ihr Platz zum Leben und Anlegen
Wohnqualität trifft Investment – Ihr Platz zum Leben und Anlegen
Wohnqualität trifft Investment – Ihr Platz zum Leben und Anlegen
Wohnqualität trifft Investment – Ihr Platz zum Leben und Anlegen
Wohnqualität trifft Investment – Ihr Platz zum Leben und Anlegen
Wohnqualität trifft Investment – Ihr Platz zum Leben und Anlegen
Wohnqualität trifft Investment – Ihr Platz zum Leben und Anlegen

Unidades disponibles: 11

desde € 255.000

Proyecto / Apartamento en venta en 1210 Wien

La calidad de vida se encuentra con la inversión: su lugar para vivir y invertir.