Hell, modern und offen – Wohnen im Dachgeschoss
Hell, modern und offen – Wohnen im Dachgeschoss
Hell, modern und offen – Wohnen im Dachgeschoss
Hell, modern und offen – Wohnen im Dachgeschoss
Hell, modern und offen – Wohnen im Dachgeschoss
Hell, modern und offen – Wohnen im Dachgeschoss

Luminoso, moderno y abierto – Viviendo en el ático

1210 Wien

Apartamento en venta en 1210 Wien

El proyecto incluye la construcción de un moderno complejo residencial con un total de 12 unidades, que destacan por su arquitectura clara, construcción de alta calidad y planos bien pensados. Se ha prestado especial atención a las amplias superficies de ventanas, que proporcionan habitaciones iluminadas y una agradable atmósfera de vivienda. Cada apartamento cuenta con espacios exteriores privados – ya sea un balcón, una terraza o un jardín privado – lo que permite a los residentes ampliar su espacio habitable al aire libre y disfrutar de la vida cotidiana con un plus de calidad de vida.

El complejo ofrece una mezcla ideal de comodidad urbana y un tranquilo refugio. Los apartamentos están diseñados para satisfacer diferentes necesidades: unidades compactas para solteros y parejas, así como apartamentos más aptos para familias con más espacio. Todos se caracterizan por un equipamiento de alta calidad, una distribución funcional de los espacios y una sensación de vivienda moderna.

Para los inversionistas, este proyecto representa una oportunidad atractiva para invertir en una inversión inmobiliaria a prueba de futuro. El mercado muestra que en esta ubicación se pueden obtener rentas netas entre 13 y 15 euros por metro cuadrado. Con base en estos niveles de renta, se pueden esperar rendimientos brutos en el rango del 3,5 al 4 por ciento, lo que convierte al proyecto en una inversión sólida y duradera. La demanda estable de viviendas y la combinación de espacios exteriores, arquitectura moderna y un tamaño óptimo de las unidades crean las mejores condiciones para una alta rentabilidad a largo plazo.

El complejo residencial no solo es un hogar moderno para los futuros residentes, sino también una inversión sostenible con rendimientos atractivos. La combinación de calidad, sensación de vida y estabilidad económica convierte este proyecto en una inversión que apela tanto al corazón como a la razón.

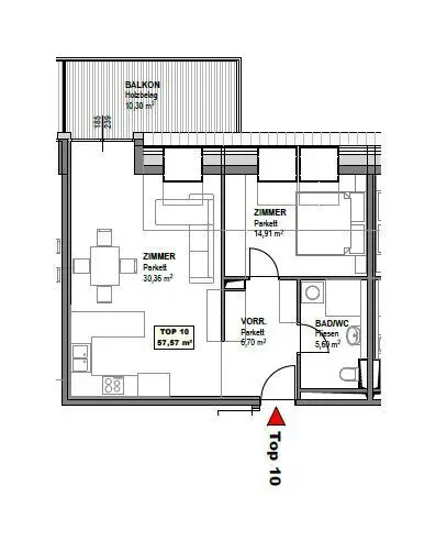
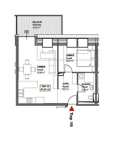
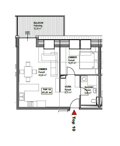
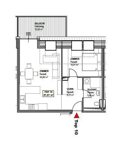
Este ático con casi 57 metros cuadrados de superficie habitable destaca por su atmósfera acogedora y su plano abierto. Dos habitaciones se pueden utilizar de manera flexible y ofrecen suficiente espacio para vivir, dormir y trabajar. El balcón de más de diez metros cuadrados ofrece una amplia vista e invita a momentos de relajación. Se complementa con una pequeña terraza que crea espacio adicional al aire libre. El apartamento es ideal para solteros o parejas que buscan un hogar tranquilo y lleno de luz, que no obstante se encuentra en medio de la vida.

Localización y conexiones de transporte

El complejo residencial se encuentra en un entorno tranquilo y amigable para familias, con una excelente infraestructura. Las escuelas, jardines de infantes y centros de cuidado se encuentran en las inmediaciones, al igual que parques infantiles y áreas verdes para niños. Las opciones de compra, farmacias y tiendas de bienes de uso diario son de fácil acceso y simplifican la vida cotidiana. La conexión con el transporte público es excelente: las líneas de tranvía y autobús están a pocos minutos a pie y ofrecen conexiones directas al centro de la ciudad. También hay puntos de transporte más grandes a corta distancia, lo que hace que los desplazamientos al trabajo y las excursiones familiares sean sencillos. La ubicación combina la comodidad urbana con un entorno residencial tranquilo y adecuado para familias, ideal tanto para padres como para niños.

Plano

Josef Ahmed

Josef Ahmed

Berater | Consultant

Compartir página

Detalles del precio

Precio de compra:
290.000,00 €
Comisión de intermediación:
Comisión:
3% del precio de compra más 20% de IVA.

Hechos

Número de objeto:
60471
Tipo de objeto:
Apartamento
Balcón:
1
Área del balcón:
10,3 m²
Área habitable:
57,18 m²
Año de construcción:
2025
Edificio nuevo:
Condición:
Primera ocupación
Disponibilidad:
Disponible

Características

Ascensor
Cuarto de baño:
Ducha
Calefacción:
Calefacción por suelo radiante

Eficiencia energética

Tipo de certificado energético:
Certificado de requisitos energéticos
Válido hasta:
17.09.2029
Demanda de energía de calefacción:
36,94 kWh/(m²*a)
Clase de demanda de energía de calefacción:
B
Factor de eficiencia energética total:
0,73
Clase de factor de eficiencia energética total:
A

Inmuebles similares

Ruhige 2-Zimmer-Wohnung mit Gartenblick und Garagenplatz
Ruhige 2-Zimmer-Wohnung mit Gartenblick und Garagenplatz
Ruhige 2-Zimmer-Wohnung mit Gartenblick und Garagenplatz
Ruhige 2-Zimmer-Wohnung mit Gartenblick und Garagenplatz
Ruhige 2-Zimmer-Wohnung mit Gartenblick und Garagenplatz
Ruhige 2-Zimmer-Wohnung mit Gartenblick und Garagenplatz
Ruhige 2-Zimmer-Wohnung mit Gartenblick und Garagenplatz
Ruhige 2-Zimmer-Wohnung mit Gartenblick und Garagenplatz
Ruhige 2-Zimmer-Wohnung mit Gartenblick und Garagenplatz
Ruhige 2-Zimmer-Wohnung mit Gartenblick und Garagenplatz
Ruhige 2-Zimmer-Wohnung mit Gartenblick und Garagenplatz
Ruhige 2-Zimmer-Wohnung mit Gartenblick und Garagenplatz
Ruhige 2-Zimmer-Wohnung mit Gartenblick und Garagenplatz
Ruhige 2-Zimmer-Wohnung mit Gartenblick und Garagenplatz
Ruhige 2-Zimmer-Wohnung mit Gartenblick und Garagenplatz
Ruhige 2-Zimmer-Wohnung mit Gartenblick und Garagenplatz
Ruhige 2-Zimmer-Wohnung mit Gartenblick und Garagenplatz
Ruhige 2-Zimmer-Wohnung mit Gartenblick und Garagenplatz
Ruhige 2-Zimmer-Wohnung mit Gartenblick und Garagenplatz
Ruhige 2-Zimmer-Wohnung mit Gartenblick und Garagenplatz
Ruhige 2-Zimmer-Wohnung mit Gartenblick und Garagenplatz
Ruhige 2-Zimmer-Wohnung mit Gartenblick und Garagenplatz
Ruhige 2-Zimmer-Wohnung mit Gartenblick und Garagenplatz
Ruhige 2-Zimmer-Wohnung mit Gartenblick und Garagenplatz
Ruhige 2-Zimmer-Wohnung mit Gartenblick und Garagenplatz
Ruhige 2-Zimmer-Wohnung mit Gartenblick und Garagenplatz
Ruhige 2-Zimmer-Wohnung mit Gartenblick und Garagenplatz

55m²

€ 250.000

Apartamento en venta en 1210 Wien

Apartamento tranquilo de 2 habitaciones con vista al jardín y plaza de garaje.

Grünes Refugium für Singles und Paare
Grünes Refugium für Singles und Paare
Grünes Refugium für Singles und Paare
Grünes Refugium für Singles und Paare
Grünes Refugium für Singles und Paare
Grünes Refugium für Singles und Paare

57.6m²

68.6m²

€ 315.000

Apartamento en venta en 1210 Wien

Refugio verde para solteros y parejas

Helle Wohnung mit Balkon und Lebensqualität
Helle Wohnung mit Balkon und Lebensqualität
Helle Wohnung mit Balkon und Lebensqualität
Helle Wohnung mit Balkon und Lebensqualität

57.4m²

10.3m²

€ 280.000

Apartamento en venta en 1210 Wien

Apartamento luminoso con balcón y calidad de vida

Charmante 2-Zimmer Wohnung mit Balkon
Charmante 2-Zimmer Wohnung mit Balkon
Charmante 2-Zimmer Wohnung mit Balkon

57.2m²

10.3m²

€ 290.000

Apartamento en venta en 1210 Wien

Encantador apartamento de 2 habitaciones con balcón.

Hell, modern und offen – Wohnen im Dachgeschoss
Hell, modern und offen – Wohnen im Dachgeschoss
Hell, modern und offen – Wohnen im Dachgeschoss
Hell, modern und offen – Wohnen im Dachgeschoss

57.2m²

10.3m²

€ 290.000

Apartamento en venta en 1210 Wien

Luminoso, moderno y abierto – Viviendo en el ático

Praktisch, modern, hell – ideal für Paare
Praktisch, modern, hell – ideal für Paare
Praktisch, modern, hell – ideal für Paare
Praktisch, modern, hell – ideal für Paare
Praktisch, modern, hell – ideal für Paare
Praktisch, modern, hell – ideal für Paare

57.5m²

10.3m²

€ 280.000

Apartamento en venta en 1210 Wien

Práctico, moderno, luminoso - ideal para parejas.

2-Zimmer Wohlfühloase mit großem Garten
2-Zimmer Wohlfühloase mit großem Garten
2-Zimmer Wohlfühloase mit großem Garten
2-Zimmer Wohlfühloase mit großem Garten
2-Zimmer Wohlfühloase mit großem Garten

41.7m²

81.3m²

€ 255.000

Apartamento en venta en 1210 Wien

2 habitaciones oasis de bienestar con gran jardín

Wohnqualität trifft Investment – Ihr Platz zum Leben und Anlegen
Wohnqualität trifft Investment – Ihr Platz zum Leben und Anlegen
Wohnqualität trifft Investment – Ihr Platz zum Leben und Anlegen
Wohnqualität trifft Investment – Ihr Platz zum Leben und Anlegen
Wohnqualität trifft Investment – Ihr Platz zum Leben und Anlegen
Wohnqualität trifft Investment – Ihr Platz zum Leben und Anlegen
Wohnqualität trifft Investment – Ihr Platz zum Leben und Anlegen
Wohnqualität trifft Investment – Ihr Platz zum Leben und Anlegen
Wohnqualität trifft Investment – Ihr Platz zum Leben und Anlegen
Wohnqualität trifft Investment – Ihr Platz zum Leben und Anlegen
Wohnqualität trifft Investment – Ihr Platz zum Leben und Anlegen

Unidades disponibles: 11

desde € 255.000

Proyecto / Apartamento en venta en 1210 Wien

Calidad de vida se encuentra con inversión - Su lugar para vivir e invertir